(+34) 958 227 735 | +34 629866123 | +34 622063367

1191 Urban Plot of Land with Views, Albayzin

Granada, Granada, Granada City
€ 300.000
Sold

Description

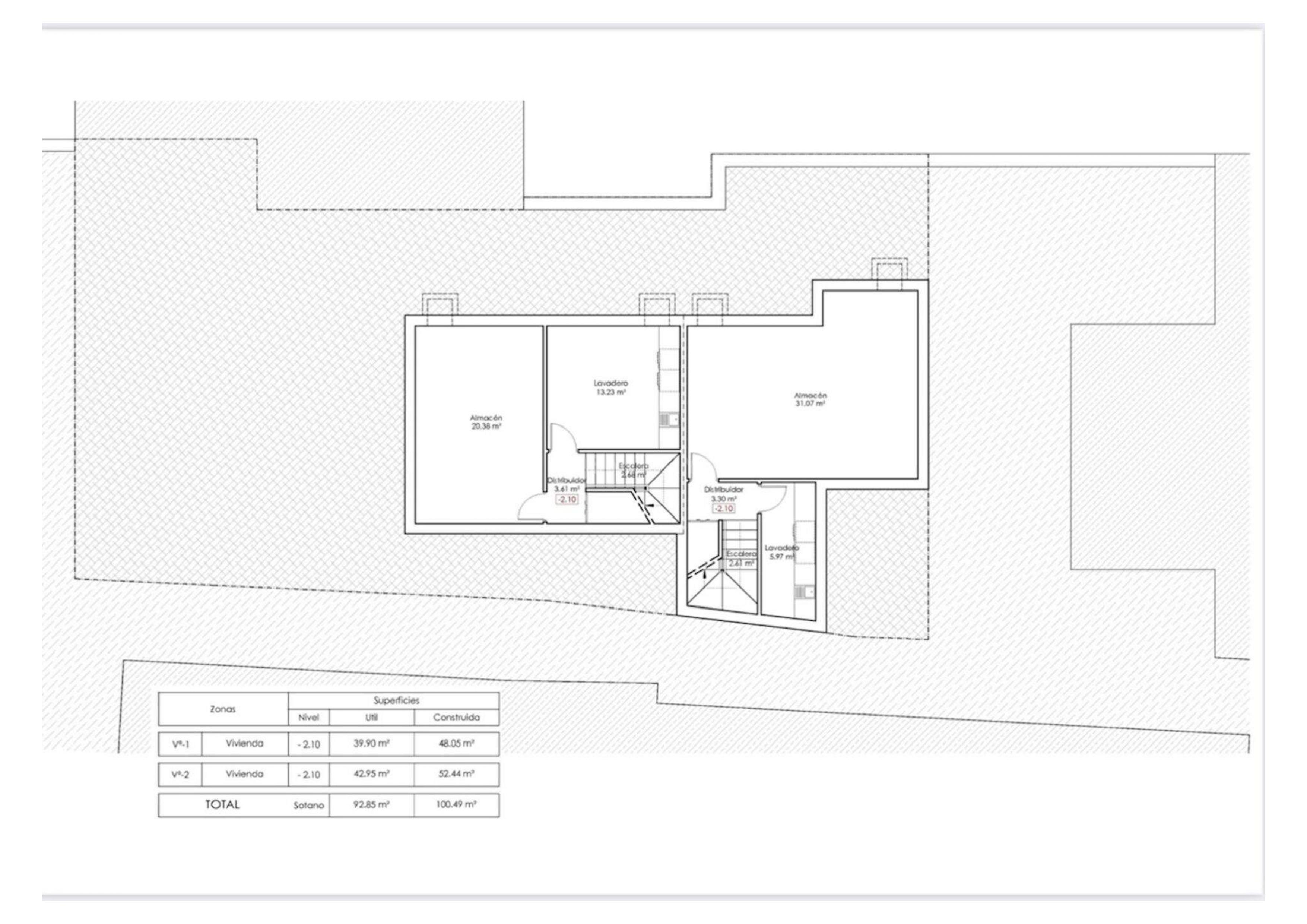
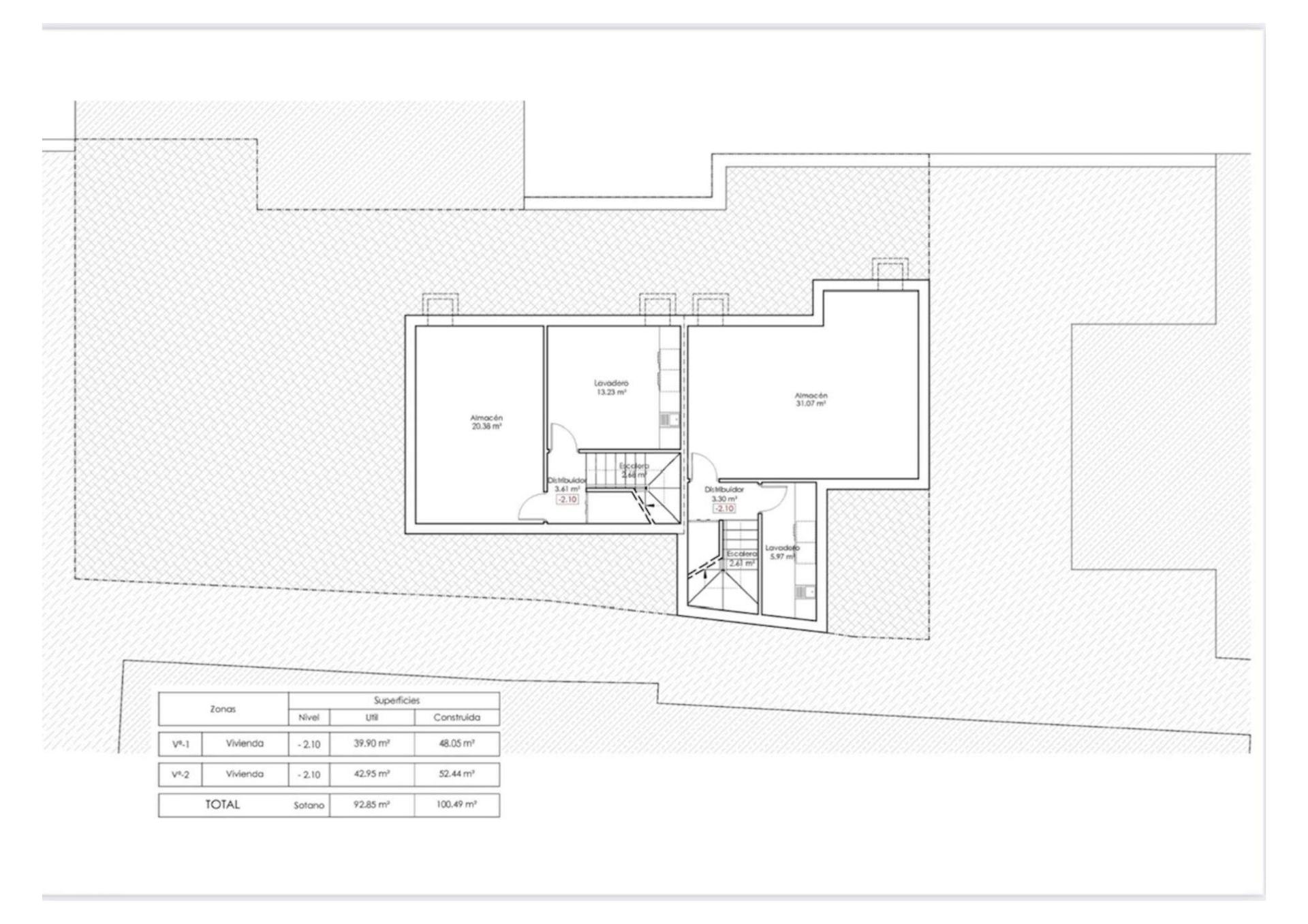
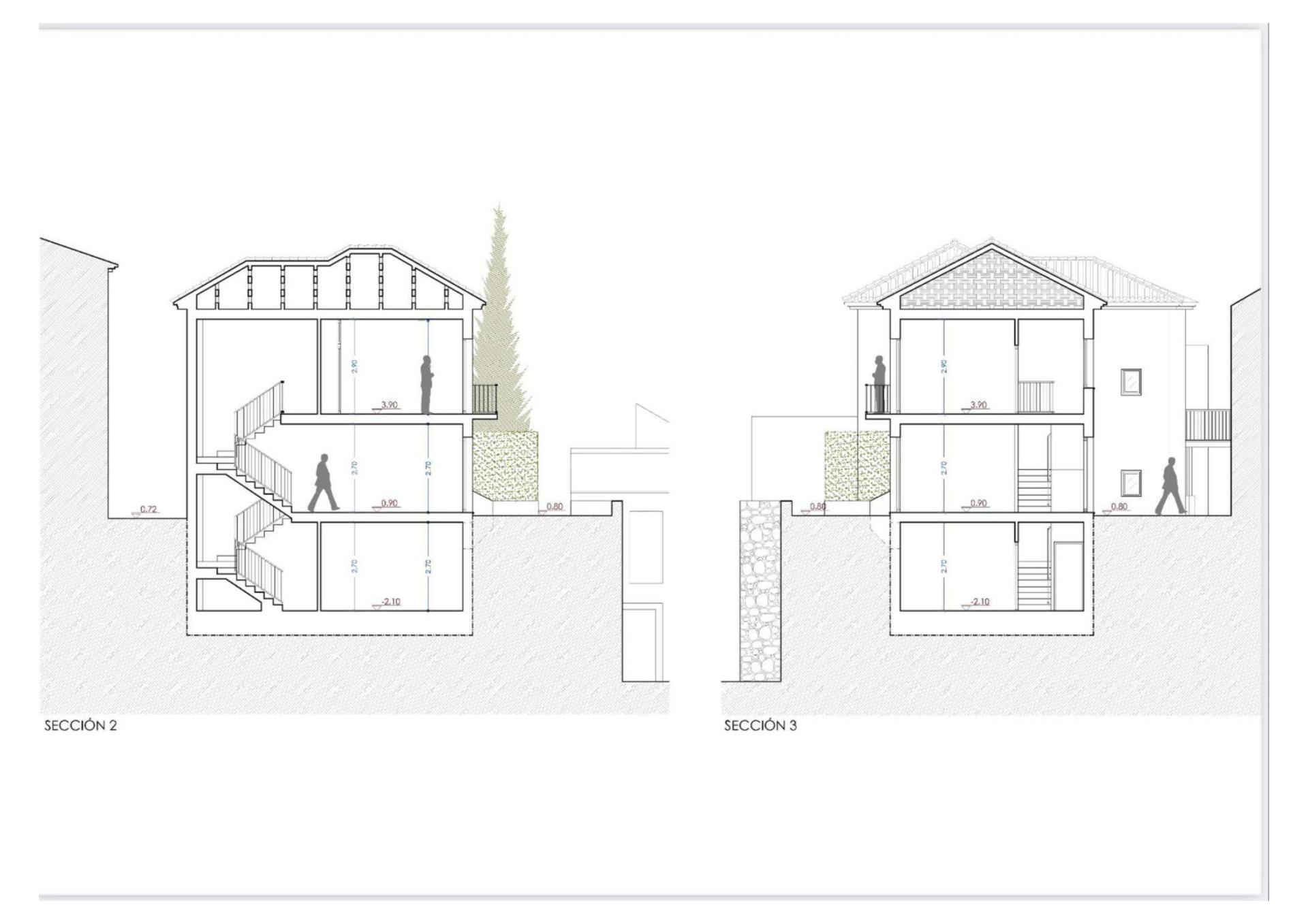
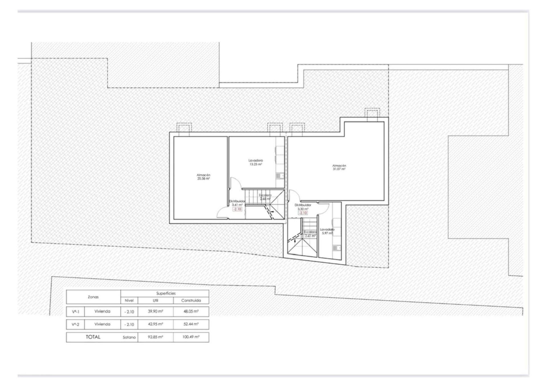
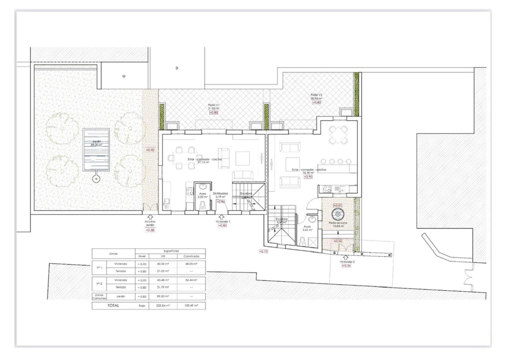
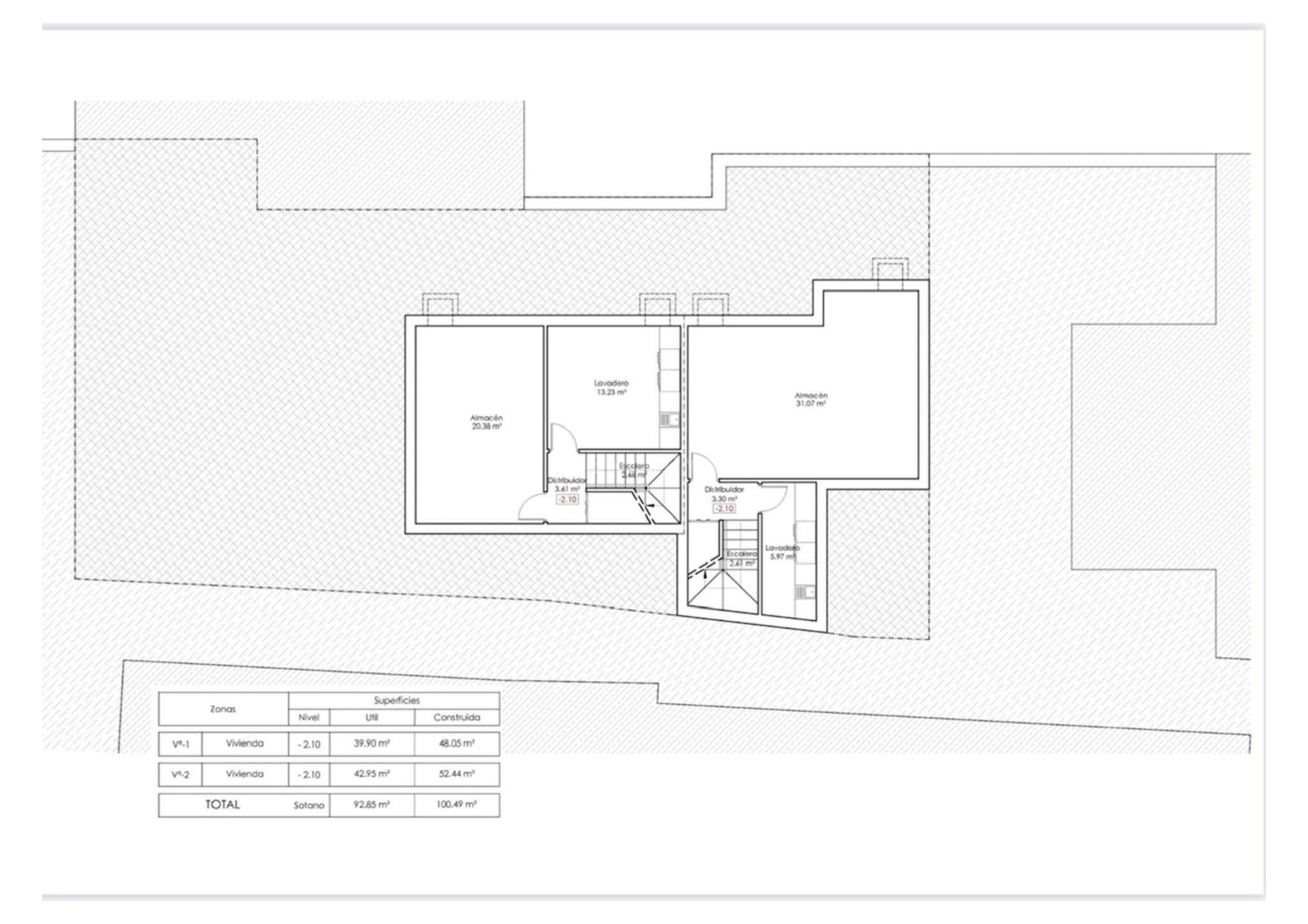
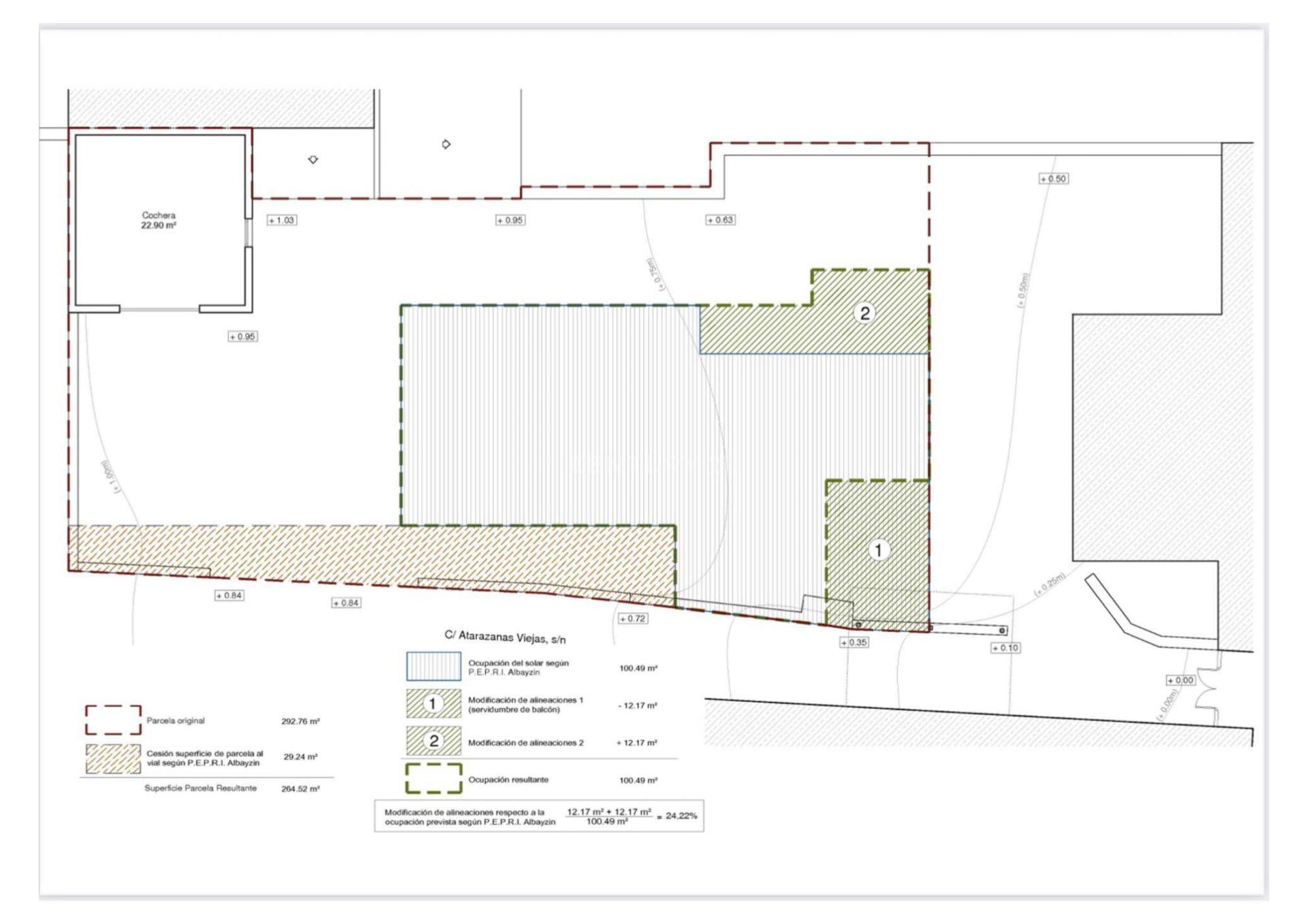
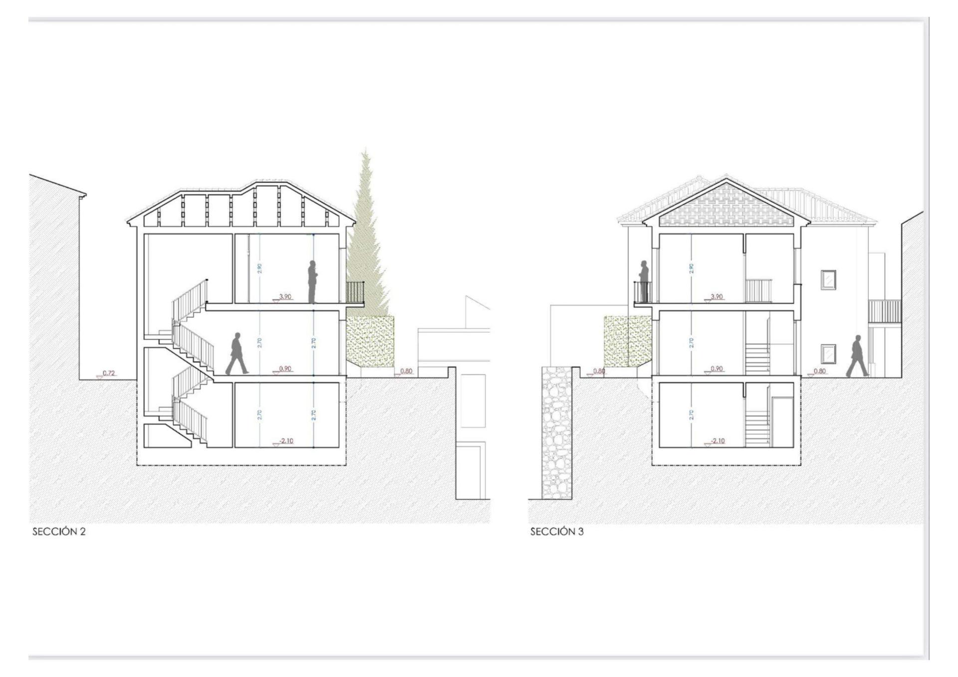
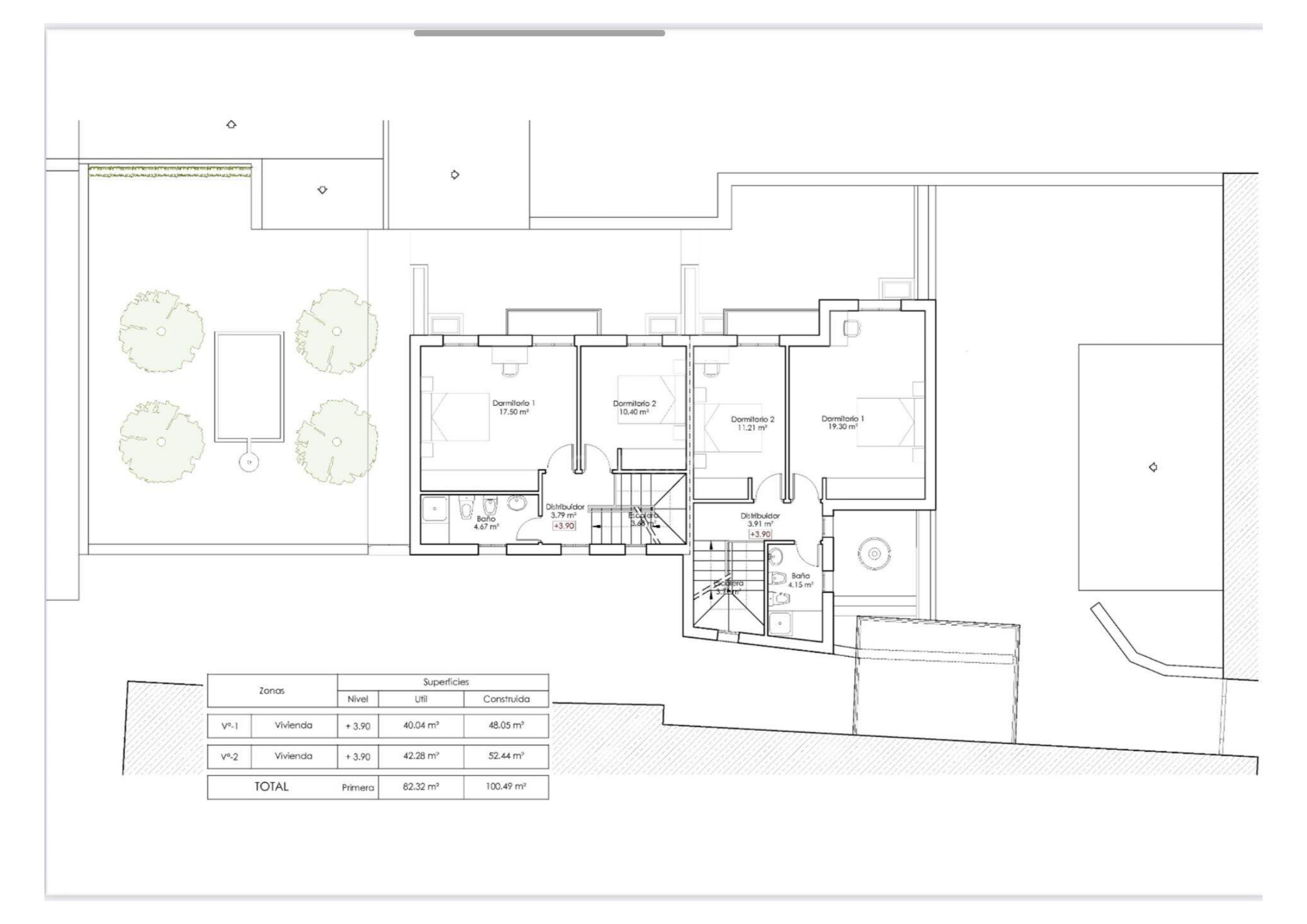
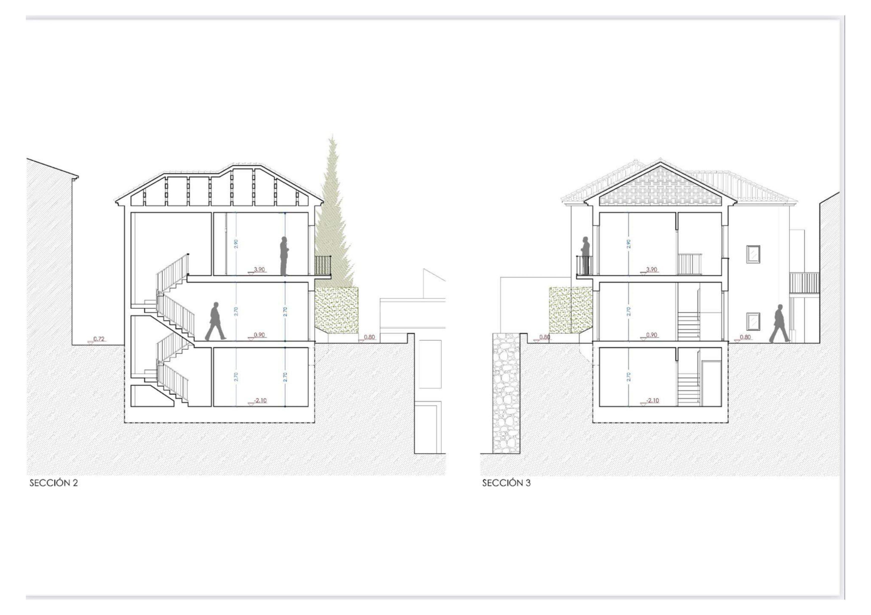
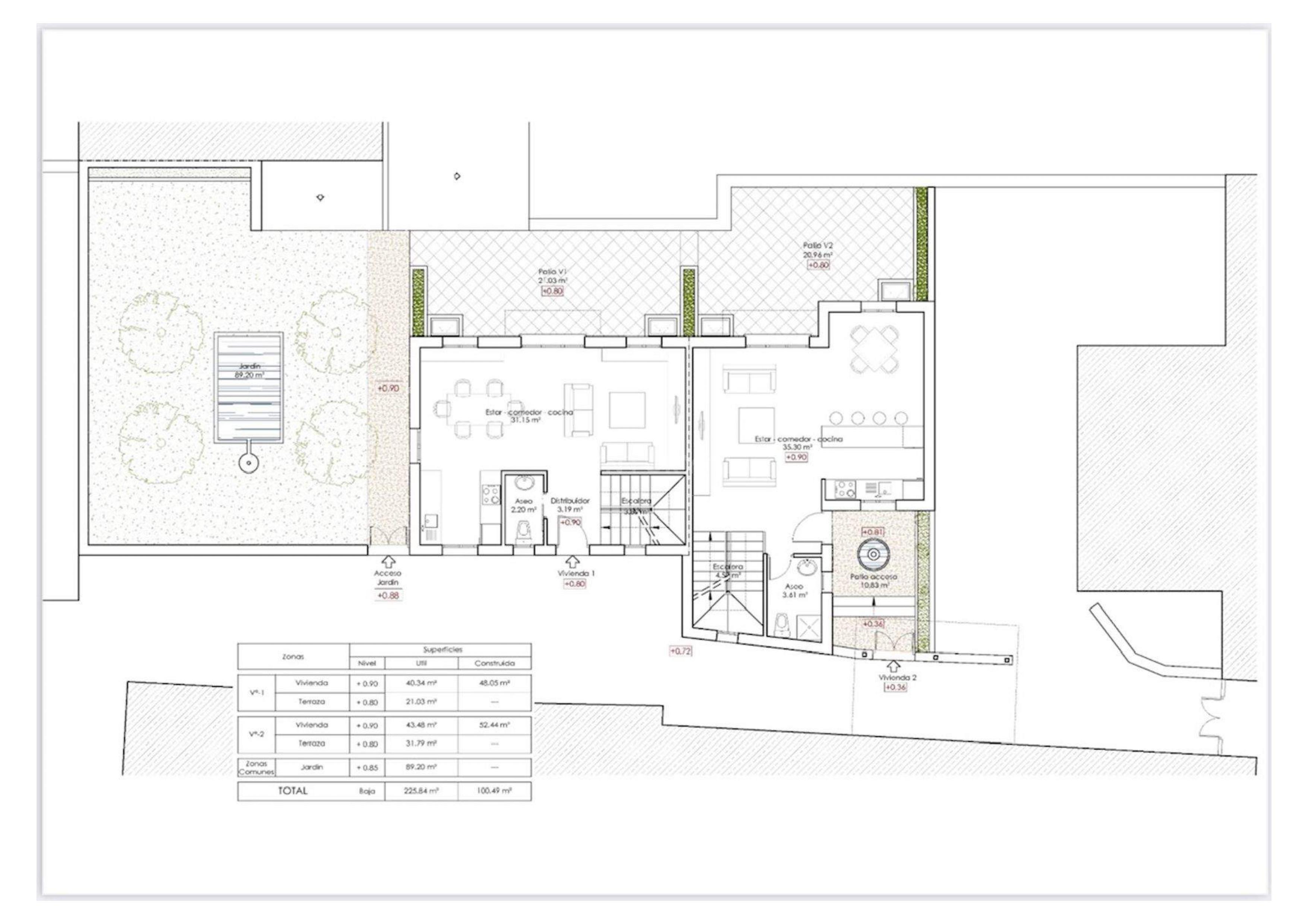
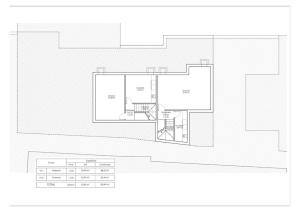
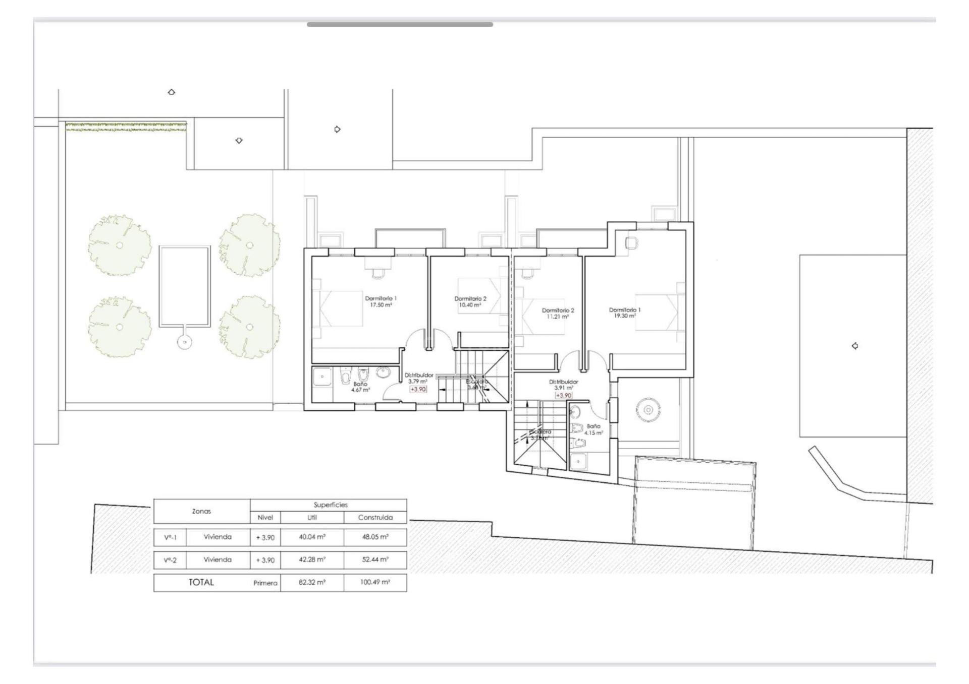
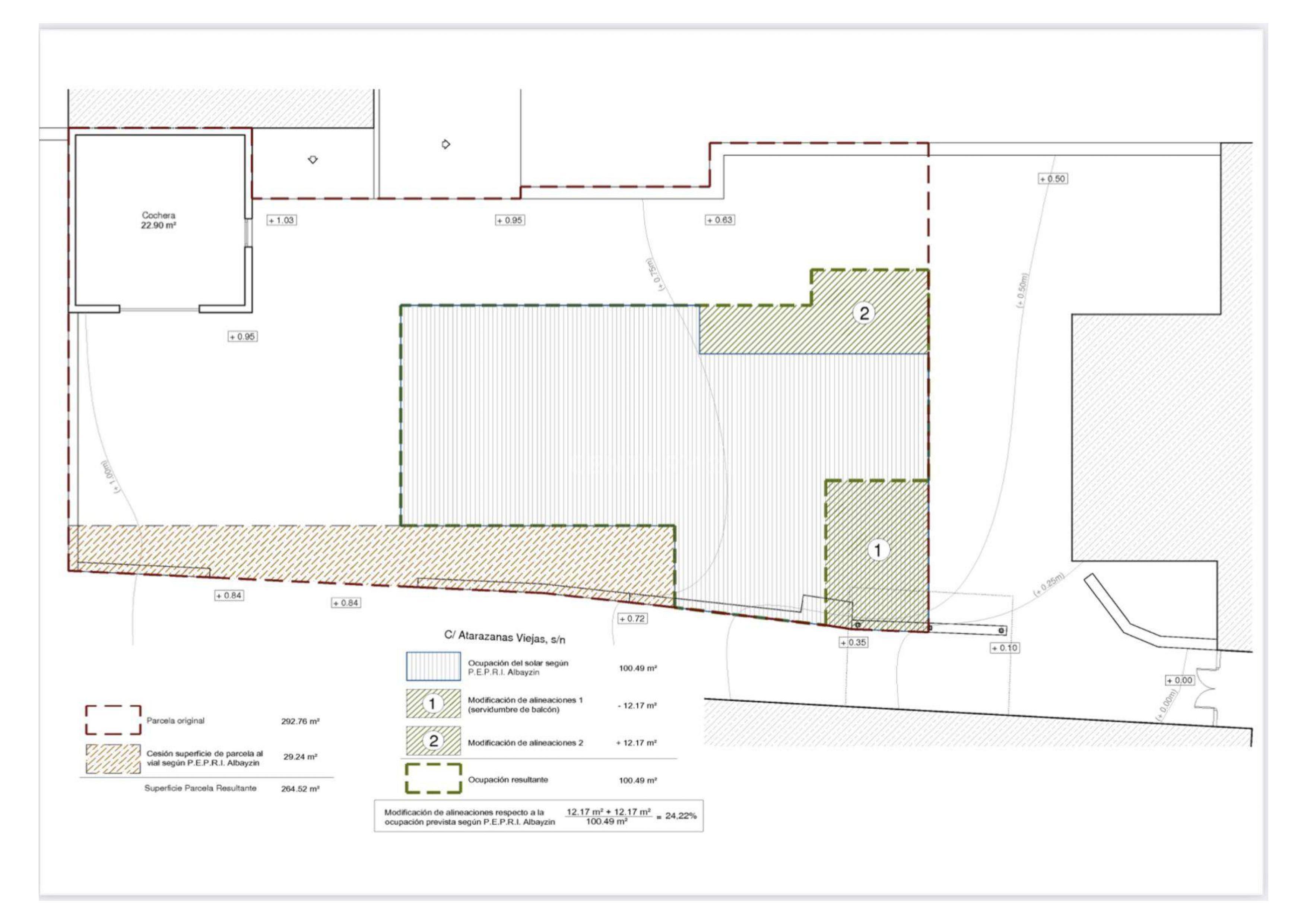
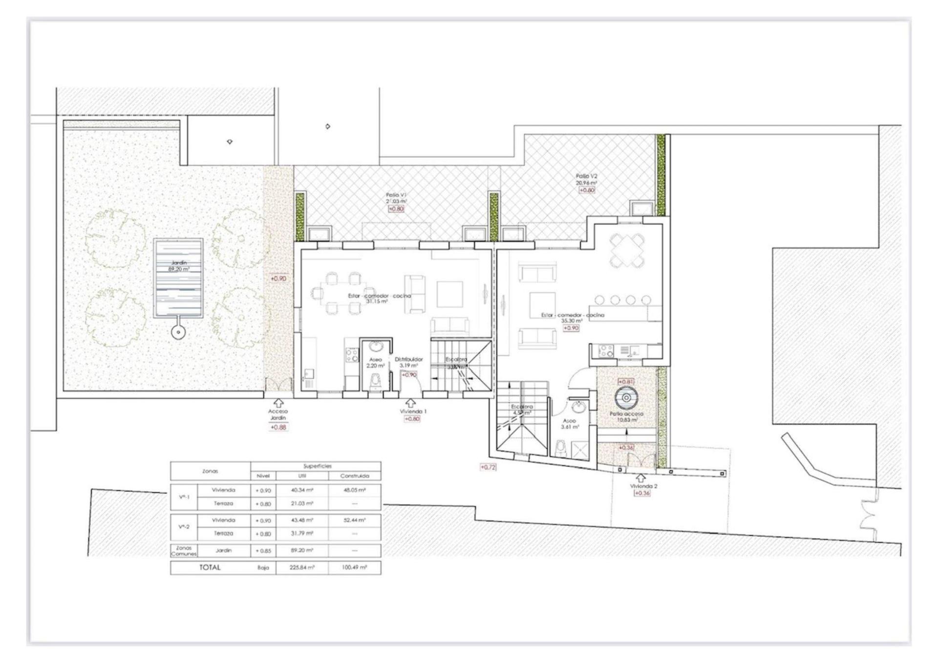
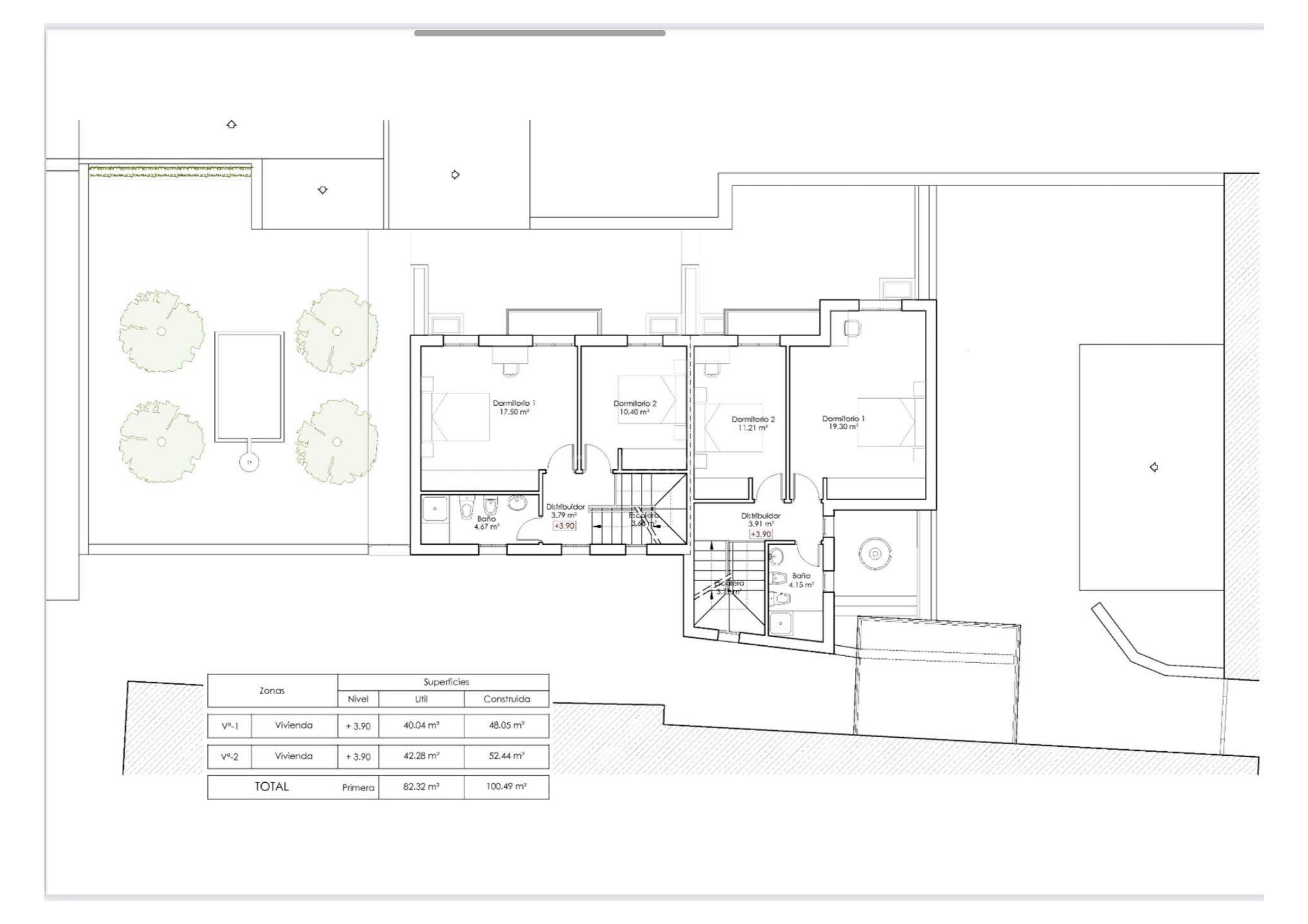
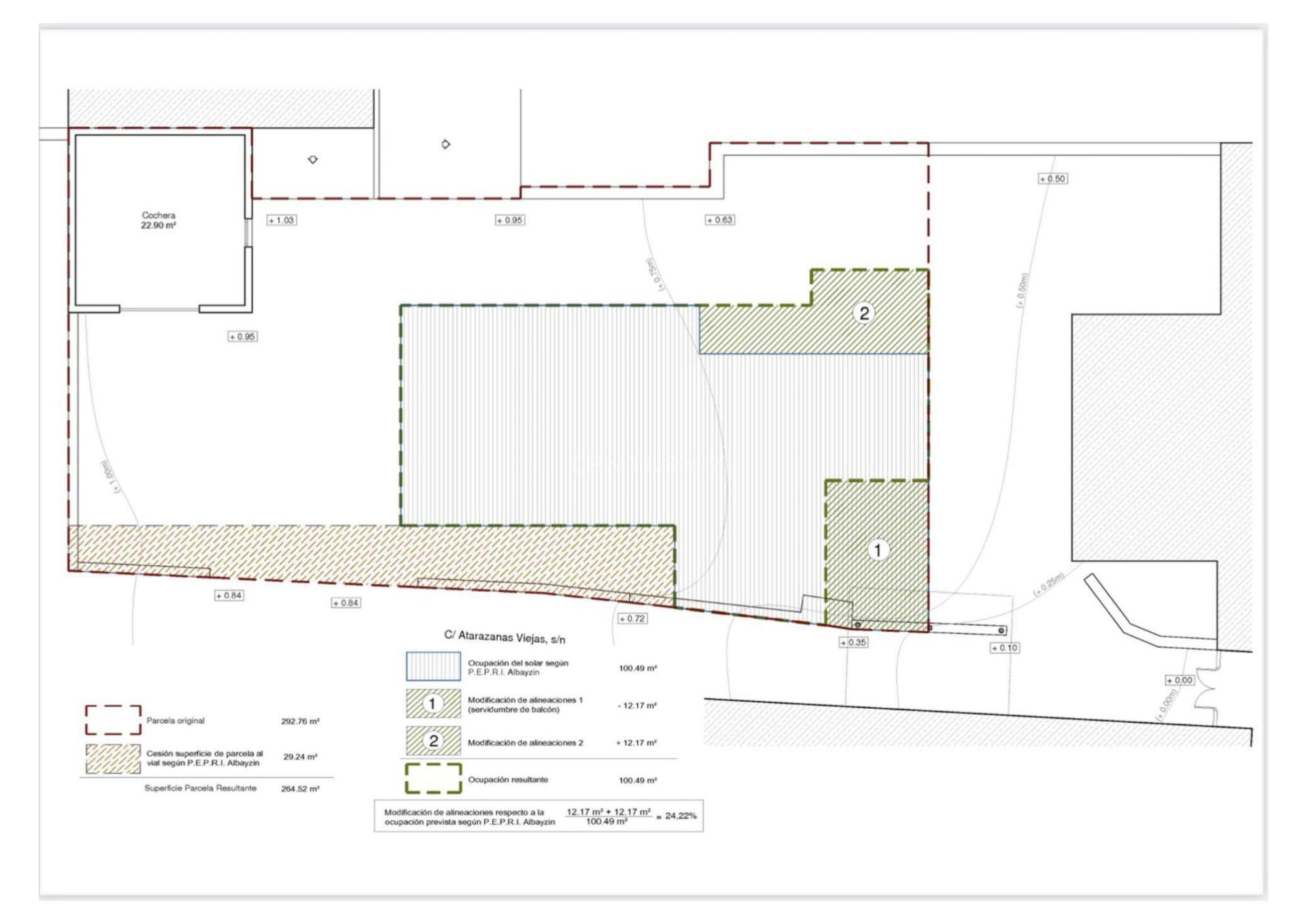
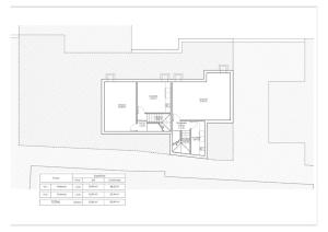
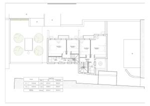
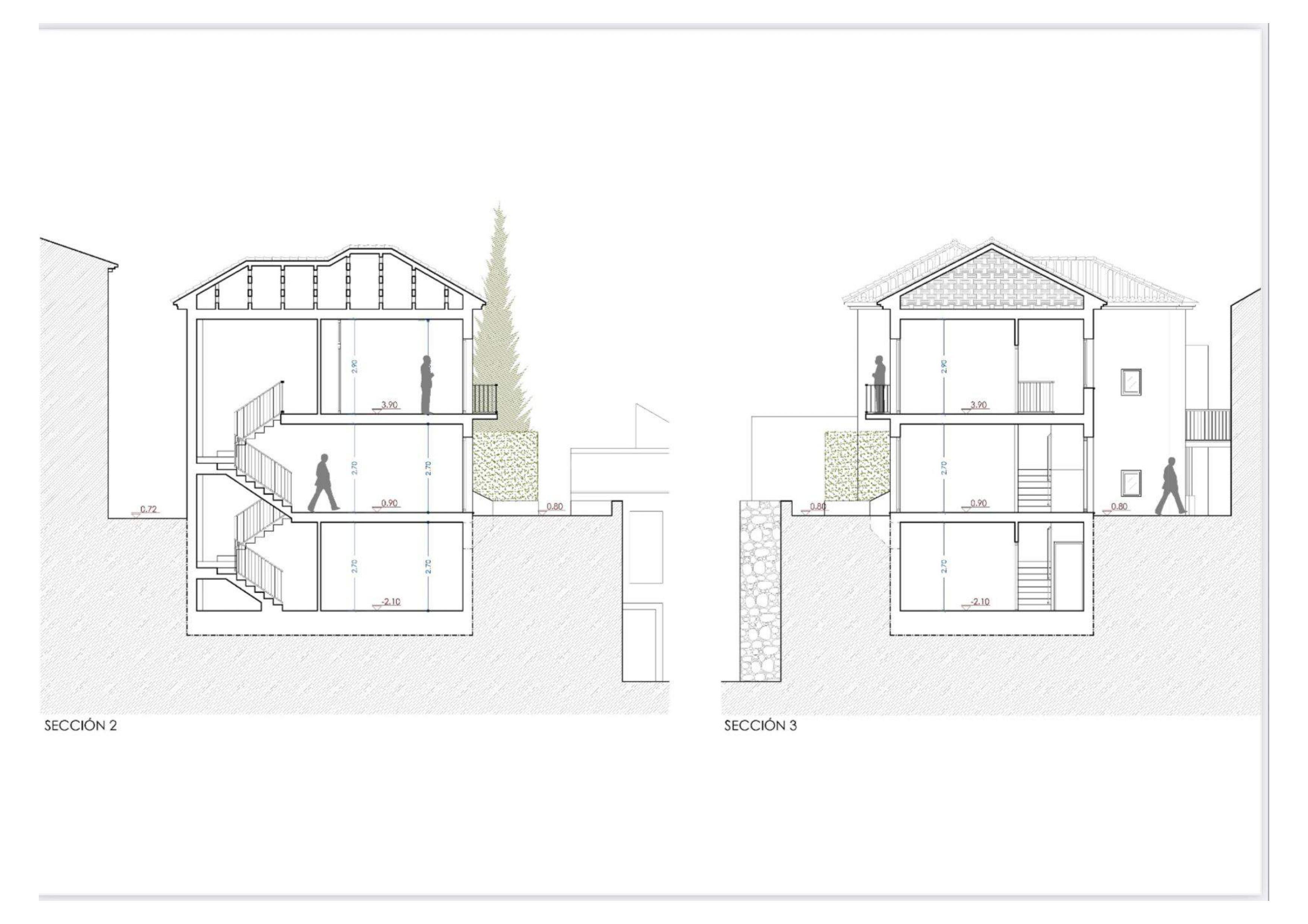
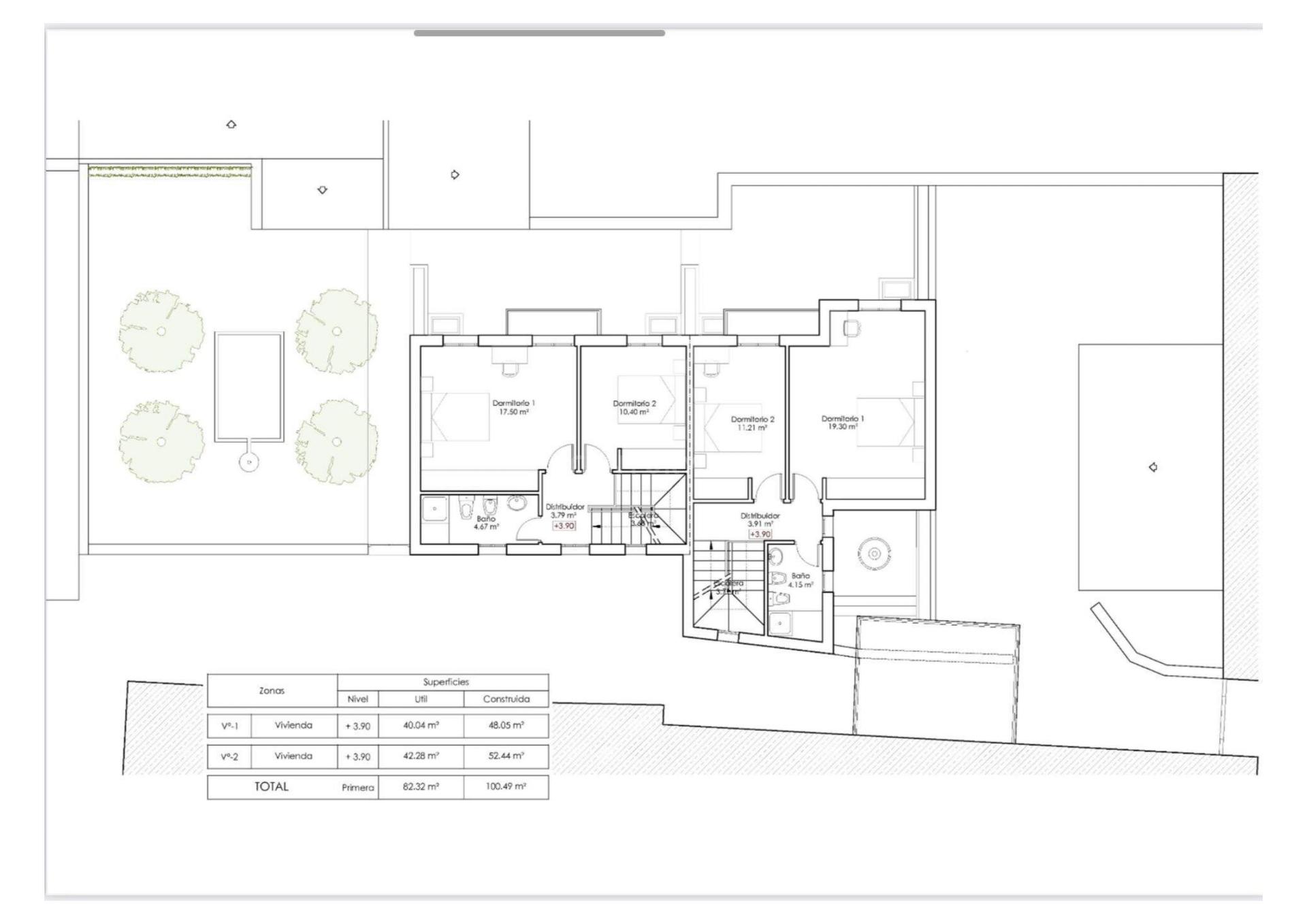
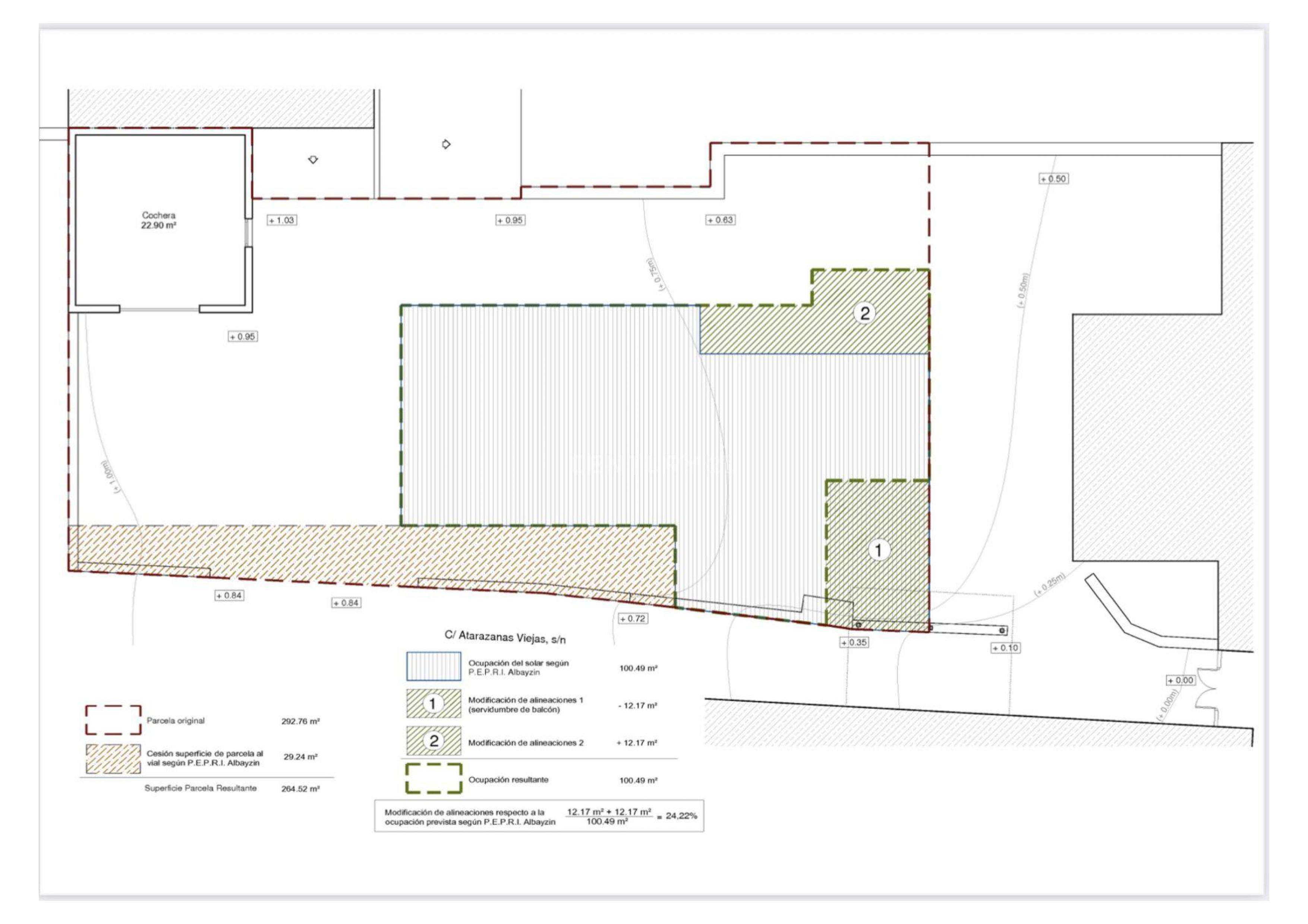
Superb urban plot of 293 m2 to build 4 to 6 TOURIST APARTMENTS or TWO FAMILY HOUSES, with magnificent, direct views of the Alhambra.

 

This is a unique opportunity for a buyer to build a new family home, guest apartments or hotel to their exact style, comfort and standards, complete with a garden and patio, in a beautiful, tranquil area of the Albayzín, with spectacular views of the Alhambra.

 

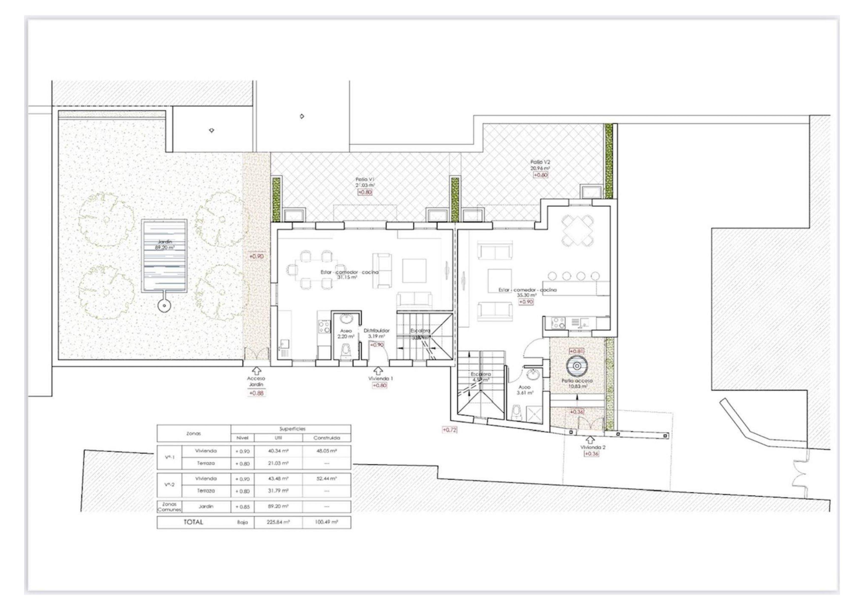
The property comes with the plans and licence to build two family houses of 150m2 each. This license can be modified to build 4 or 6 Touristic Apartments, of 50 m2 or 33.3 m2, depending on the buyer's interests. We can present you with builders and all other help. Construction costs of €700 to €800/m², offering great profitability.

 

After building, there is left over 190 m2 for gardens and patios. The plot has various fruit trees on it at present as well as a 25m2 garage / storeroom.

 

The property is located in the coveted old quarter of the Albaicín in Granada, next to the Mirador de San Nicolás, with impressive views of the Alhambra. There is a bus stop only three minutes away and it is close to shops as well as the city centre.

 

If you don’t yet know this wonderful, historic neighbourhood of Granada well, why not take a look at our exposure guide on the Albayzin in the Area Guide section above (next to Overview).

Features

 General
Close To Bus Stop
Sierra Nevada Views
South Facing
Tranquil Location
Income Potential
Potential B&B
Alhambra Views
Close To All Amenities
 Exterior
Garden
 Land
Fruit Trees
Extra Features Middle Albayzin

Distances

  • Beach: 50 minutes by Car
  • Ski Station: 50 minutes by Car
  • Supermarket: 5 minutes by Walk
  • Restaurant: 5 minutes by Walk

Similar Properties

Properties in the same area
Granada, Granada, Granada City
Buying Procedure and Costs

The details listed above are believed to be correct but are offered merely as a guide and do not form part of any future contract. If you are unfamiliar with buying property in Spain you may wish to read our guide to the buying procedure.
As in all countries there are further costs incurred when purchasing a property which are not included in the price stated above. These are the purchase tax, buyer's share of agency commission, notary and registry. Together these constitute approximately 11% in Andalucia, 13% in Extremadura and 14% in the Comunidad de Valencia. Please remember to take account of this when budgeting.